Interior Design for Home Renovations


If you're starting a home renovation, bringing in an interior designer early on can help alleviate the stress of managing a project, by freeing up your time and helping you to avoid costly mistakes later down the line.

By carefully planning furniture layouts, plumbing, electrical, and lighting configurations, I can help you visualise the final spaces, giving you the confidence to make informed decisions for your contractors.

I’ll also liaise with contractors on site visits to check on the installation process, provide you with guidance before and during the renovation, and help you navigate any tricky questions that might arise.

This is a bespoke service and will be priced according to project requirements.

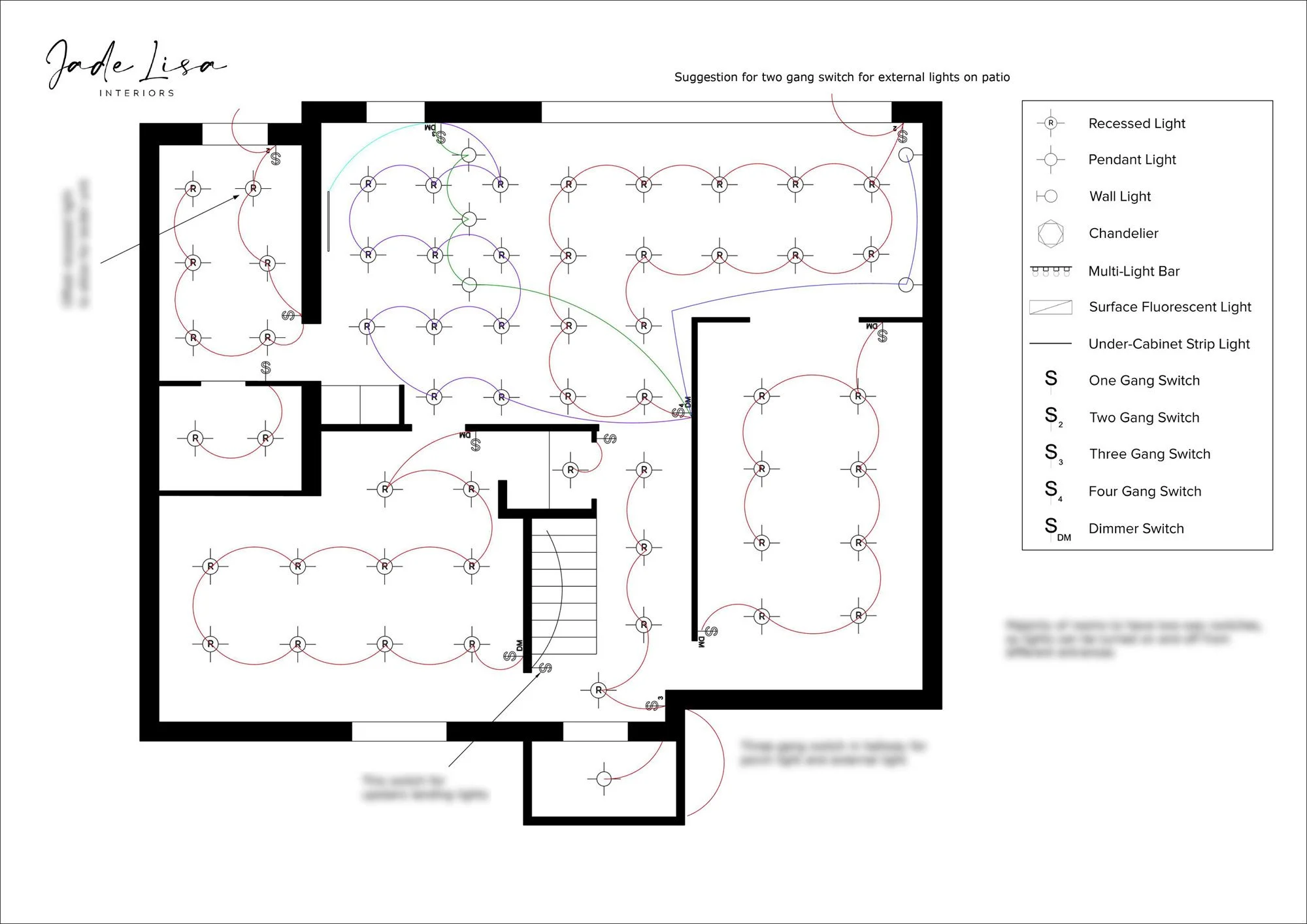
The design pack

You will receive a comprehensive, digital design pack, featuring detailed drawings, measurements and installation notes. This pack takes the uncertainty and guesswork out of your home renovation and makes the implementation process easier for both you and your contractors.

Below is a sample design pack for a ground floor renovation, featuring design ideas for an open-plan kitchen/diner, detailed elevations for a kitchen supplier, full utility room design with measurements and notes for contractors, as well as a full lighting and electrical plan.

Ready to get started?

Book a free discovery call